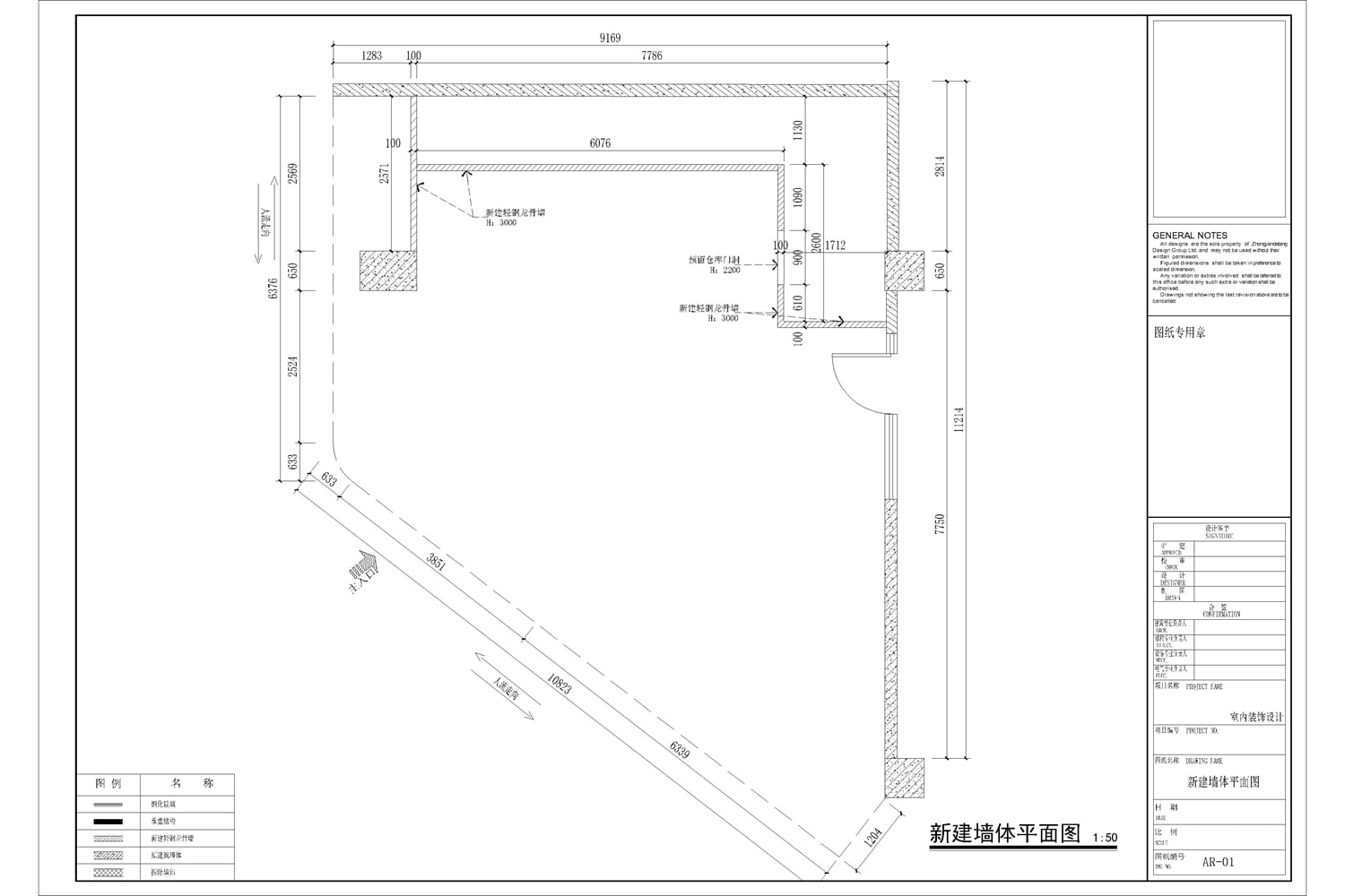
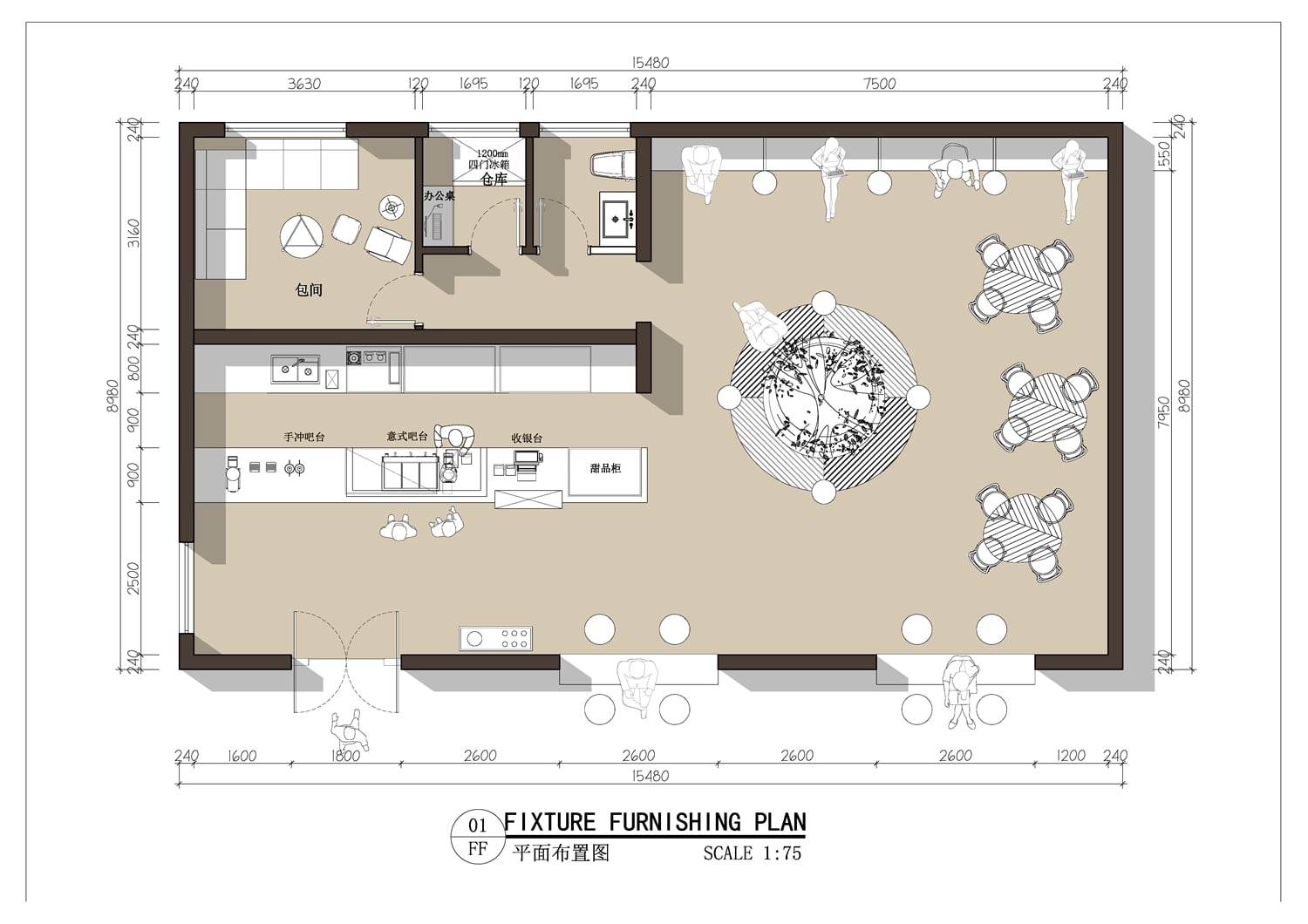
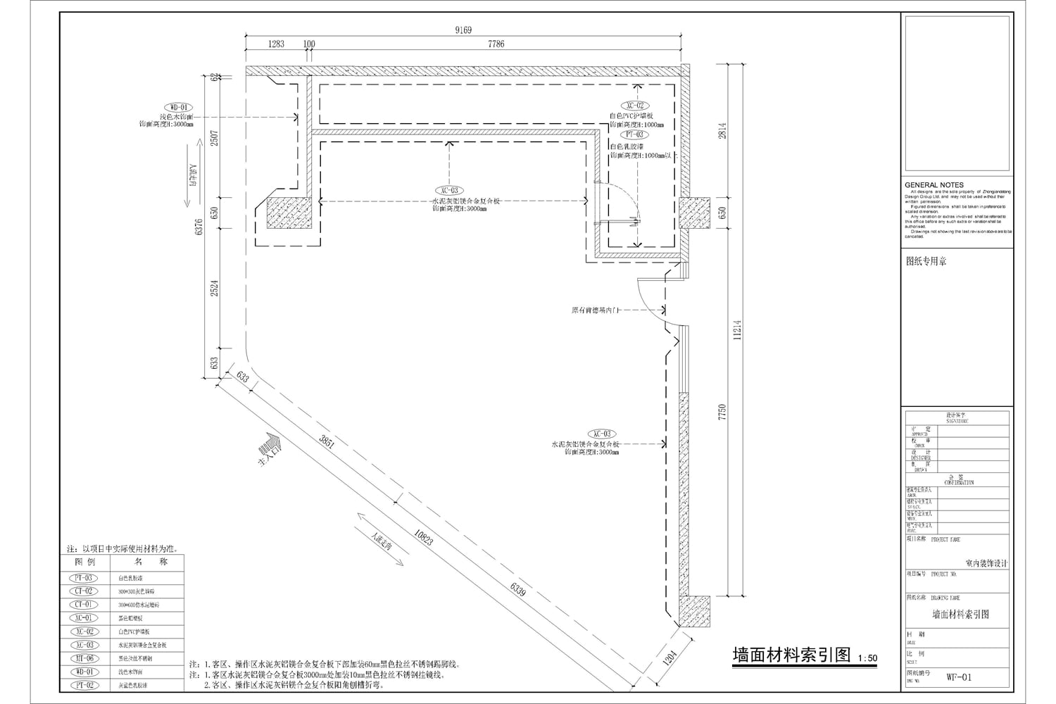
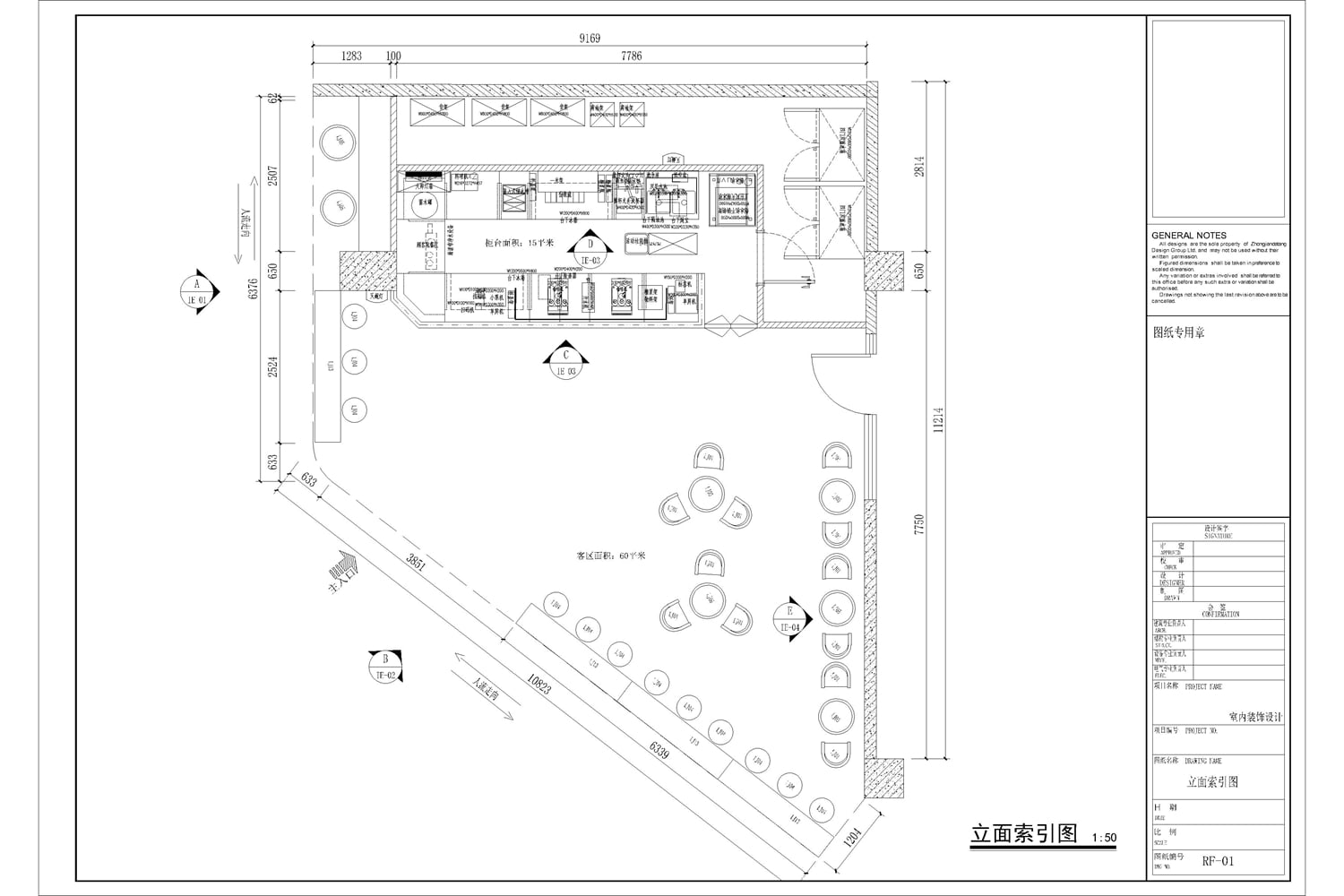
咖啡店CAD施工图方案图纸,涵盖平面布置、吊顶天花、墙体定位、水电配电、立面大样等核心图种,兼顾功能分区与风格营造。图纸标注精准合规,适配不同面积咖啡店布局,兼容工业风、现代极简等多元设计风格,可直接指导施工落地,同时为设计师提供空间规划、动线设计、材质选型的专业参考,高效解决从方案设计到施工执行的全流程需求。


下载地址1立即下载
1:若下载地址已经失效,请联系客服修正。
2:下载内容仅供学习交流使用,请勿商用。
3:本站部分资源来自网络收集及用户分享,若侵犯了您的合法权益,请联系我们删除。
本文链接:https://www.itaoshe.com/7930.html,如果对你有帮助,欢迎分享给你的朋友!





评论0