

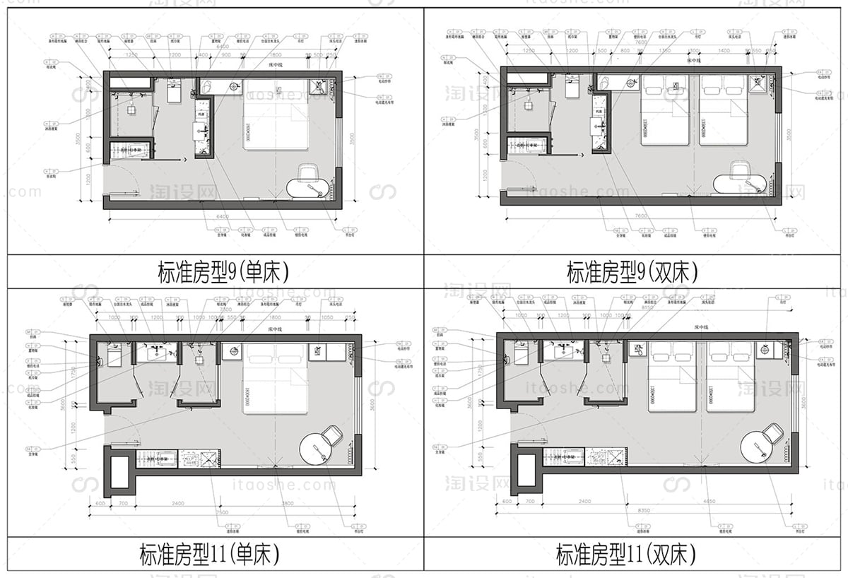
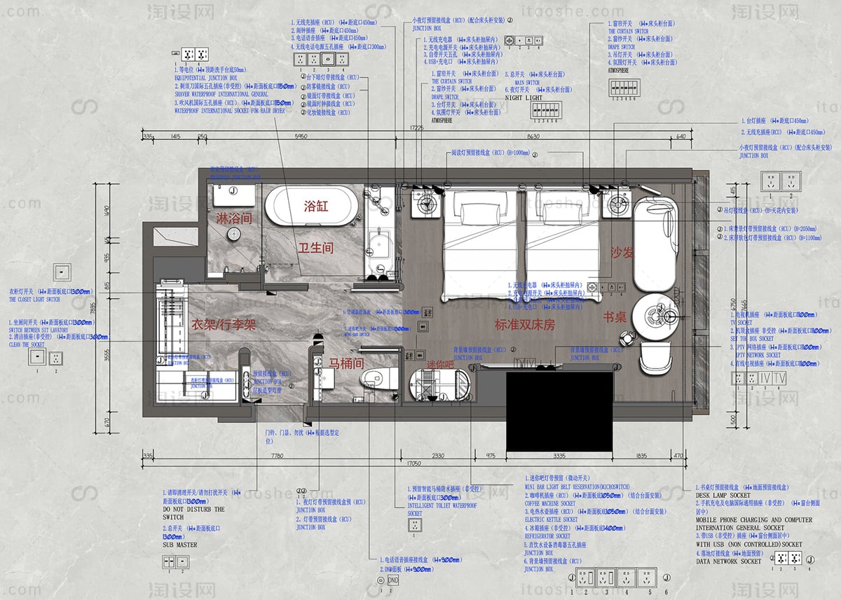
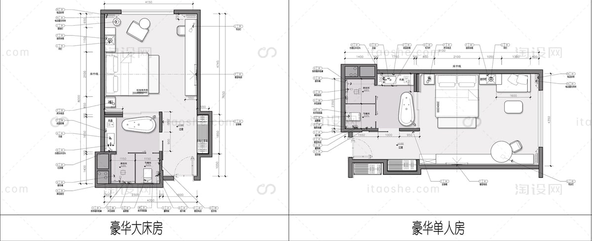
资源下载
下载价格80 淘币
VIP免费
立即购买
1:若下载地址已经失效,请联系客服修正。
2:下载内容仅供学习交流使用,请勿商用。
3:本站部分资源来自网络收集及用户投稿,若侵犯了您的合法权益,请联系我们删除。
本文链接:https://www.itaoshe.com/7910.html,让设计更简单,让工作更轻松!




评论0